価格 |
3,580万円 |
||
|---|---|---|---|
間取 |
3SLDK |
築年月 |
2018/08(築7年) |
建物面積 |
118.2m²(35.75坪) |
土地面積 |
213.2m²(64.49坪) |
所在地 |
下関市大学町3丁目 |
||
周辺環境 |
大学町3丁目まで 徒歩2分 |
お電話でのお問い合わせ
物件番号:7921
お電話でお問い合わせの際は、物件番号をお伝えください。
083-263-1144
営業時間:9:00 AM - 6:00 PM
定休日:第1・第3火曜、水曜定休
ポイント
POINT
下関市大学町三丁目の閑静な住宅街に位置する、2018年8月築のオール電化住宅です。
土地約64.49坪、建物約118㎡の3LDKで、敷地は整形地。隣接建物との距離も確保され、落ち着いた住環境が広がります。
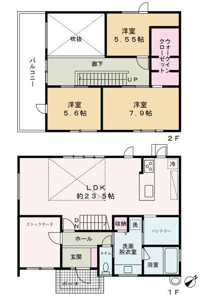
LDKは約23.5帖とゆとりのある広さ。吹抜けを設けた開放的な空間で、テクノストラクチャー工法を採用し、設計時に構造計算を行うことで、耐震性と空間の広がりのバランスに配慮した住まいです。
アイアン階段や間接照明を取り入れた室内は、落ち着きのあるお洒落な雰囲気にまとまっています。
キッチンはIH・食洗機付きのカウンタータイプ。パントリーやストックヤードも備わり、ストックヤードはバイクや自転車のガレージとしての利用も可能。
窓にはオール樹脂サッシを採用し、室内の快適性にも配慮されています。
駐車スペースは3台以上可能(車種による)。バス停「大学町三丁目」まで徒歩2分と、通勤・通学にも便利な立地です。
土地約64.49坪、建物約118㎡の3LDKで、敷地は整形地。隣接建物との距離も確保され、落ち着いた住環境が広がります。
LDKは約23.5帖とゆとりのある広さ。吹抜けを設けた開放的な空間で、テクノストラクチャー工法を採用し、設計時に構造計算を行うことで、耐震性と空間の広がりのバランスに配慮した住まいです。
アイアン階段や間接照明を取り入れた室内は、落ち着きのあるお洒落な雰囲気にまとまっています。
キッチンはIH・食洗機付きのカウンタータイプ。パントリーやストックヤードも備わり、ストックヤードはバイクや自転車のガレージとしての利用も可能。
窓にはオール樹脂サッシを採用し、室内の快適性にも配慮されています。
駐車スペースは3台以上可能(車種による)。バス停「大学町三丁目」まで徒歩2分と、通勤・通学にも便利な立地です。
物件詳細DETAIL
建物構造 |
木造 |
間取詳細 |
|
|---|---|---|---|
建ぺい率 |
60% |
容積率 |
200% |
地目 |
宅地 |
用途地域 |
第二種中高層住居専用地域 |
取引態様 |
仲介 |
私道面積 |
- |
引渡時期 |
相談 |
土地権利 |
所有権 |
借地料 |
- |
借地期間 |
- |
セットバック |
建築確認番号 |
||
接道 |
諸費用 |
||
学区 |
山の田小学校 1,284m
山の田中学校 1,104m |
||
特色/設備 |
オートバス 追焚機能 浴室暖房乾燥機 温水洗浄便座 IHクッキングヒーター カウンターキッチン 食器洗浄乾燥機 ウォークインクローゼット 間接照明 ダウンライト 複層ガラス Low-Eガラス 全居室フローリング 電気 上水道 下水道 モニタ付インターホン 庭 駐車場3台分以上 |
||
情報更新日 |
2026年02月08日 |
次回更新予定日 |
2026年02月09日 |
取引条件有効期限 |
2026年02月08日 |
※掲載されている物件データが現状と異なる場合は現状を優先します。
西京地所株式会社COMPANY
所在地 |
山口県下関市一の宮町1丁目4番28号 オーセンティック西京1F |
||
|---|---|---|---|
免許番号 |
山口県知事免許(7)第2692号 |
||
会員 |
(公社)全国宅地建物取引業保証協会
|
||
電話番号 |
083-263-1144 |
FAX番号 |
083-263-1143 |
営業時間 |
9:00 AM - 6:00 PM |
定休日 |
第1・第3火曜、水曜定休 |
