
賃料 |
15万円 |
共益費/管理費 |
- |
---|---|---|---|
敷金 |
1ヶ月 |
礼金 |
1ヶ月 |
保証金 |
- |
敷引_償却 |
- |
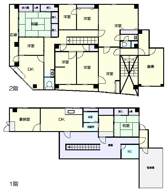
間取り |
10DK |
築年月 |
1974/07(築51年) |
面積 |
282.55m²(85.47坪) |
階建 |
4階建 |
所在地 |
下関市一の宮町2丁目 |
||
周辺環境 |
JR新下関駅 南口まで 徒歩4分 |
お電話でのお問い合わせ
物件番号:18529
お電話でお問い合わせの際は、物件番号をお伝えください。
083-263-1144
営業時間:9:00 AM - 6:00 PM
定休日:第1・第3火曜、水曜定休
ポイント
POINT
JR新下関駅まで徒歩4分で駐車場1台込!!
広々とした間取なので大家族や荷物の多い方におすすめです!!どんな風に使おうか夢が広がりますね♪
広々とした間取なので大家族や荷物の多い方におすすめです!!どんな風に使おうか夢が広がりますね♪
物件詳細DETAIL
建物構造 |
鉄筋コンクリート造 |
向き |
|
---|---|---|---|
現況 |
空室 |
入居時期 |
相談 |
間取詳細 |
間取図参照 |
総戸数 |
3戸 |
保険等 |
要 2年 |
保証会社 |
必須 |
契約期間 |
2年 |
更新料 |
|
取引態様 |
仲介 |
仲介手数料 |
1ヶ月 |
駐車場 |
1台込 |
学区 |
一の宮小学校
勝山中学校 |
諸費用 |
24時間サポート 8,800円
定額水道料 5,000円 |
入居費用(概算) |
628,800円 |
特色/設備 |
保証会社加入要(初回 月額総賃料の77%+審査事務手数料1,100円税込・以降1年毎に更新料2,000円)、損害保険加入要、24時間サポート 8,800円(税込)/1年毎、定額水道料 5,000円/月、駐車場1台込、都市ガス、給湯、上水道、公共下水、IHクッキングヒーター、バストイレ別、温水洗浄便座、シャンプードレッサー、室内洗濯機置場、追焚バス、浴室乾燥機、シャワー、モニター付インターホン |
||
情報更新日 |
2025年10月13日 |
次回更新予定日 |
2025年10月14日 |
※掲載されている物件データが現状と異なる場合は現状を優先します。
周辺地図MAP

西京地所株式会社COMPANY
所在地 |
山口県下関市一の宮町1丁目4番28号 オーセンティック西京1F |
||
---|---|---|---|
免許番号 |
山口県知事免許(7)第2692号 |
||
会員 |
(公社)全国宅地建物取引業保証協会
|
||
電話番号 |
083-263-1144 |
FAX番号 |
083-263-1143 |
営業時間 |
9:00 AM - 6:00 PM |
定休日 |
第1・第3火曜、水曜定休 |